ADDRESS
CAMINO MAQUIAL S/N, 46430 Sollana, Valencia
+34 962 137 060 | +34 962 137 027
info@woodequip.net
WORKING HOURS
Lun - Vie: 8h a 18h

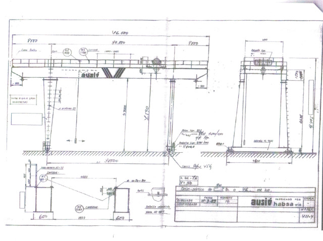
GANTRY CRANE AUSIO 20 TN - Woodequip

Project Info

CAPACITY: 20 tn


Make

AUSIO

Category

Various


Project Description